Bilocale in vendita

Alzano Lombardo, Via Andrea Fantoni
€ 120.000
2 locali 2 locali
55 Mq 55 Mq
1 bagno 1 bagno

Bilocale in vendita

Alzano Lombardo, Via Andrea Fantoni

Descrizione annuncio

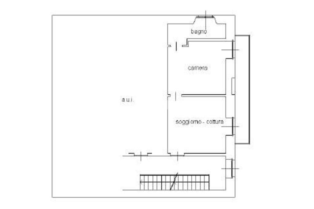
Alzano Lombardo:In zona centrale comoda a tutti i servizi, in palazzo del '700 denominato 'Vecchia Filanda' proponiamo Bilocale sito al terzo piano.
L'immobile si compone da soggiorno con cucina a vista con uscita sul balcone, camera da letto matrimoniale anch'essa con portafinestra con uscita sul balcone ed un bagno finestrato.
L'immobile è stato completamente ristrutturato a nuovo, pavimentazione in gres porcellanato, porta blindata automatizzata, impianto di aria condizionata con pompa di calore. Termoautonomo e con termostato Wi-Fi gestibile anche da remoto.
L'immobile viene venduto completamente arredato e fornito con cucina componibile, tavolo allungabile e 4 sedie, soggiorno con comodo divano letto per 2 persone e mobile tv, camera arredata con armadio, piccola scrivania, rete con materasso, corredati con: TV, lampadari, lavatrice, piastra ad induzione, microonde, tostapane, pentole di varie grandezze, bicchieri, piatti e posate.
È ideale anche per attività di B&B, affitti brevi e/o transitori.
Poche le spese condominiali.
L'appartamento è sito in posizione centrale il che gli permette di raggiungere a piedi tutti i servizi principali che la Città di Alzano Lombardo offre come farmacia, ospedale, scuole, asilo, banche, poste, negozi, supermercati, piscina e palestra.
La fermata TEB 'Alzano Centro' è situata a soli 300mt.

Mostra tutto

Nelle vicinanze

Trasporto pubblico Trasporto pubblico
Alzano Centro
Alzano Centro
360 m
Alzano Sopra
Alzano Sopra
830 m
1066
1066
250 m
1067
1067
260 m
Ricariche auto elettriche Ricariche auto elettriche
Stazione TEB ALZANO Centro | ENELX
340 m
PARCHEGGIO delle Poste Alzano | ENELX
410 m
Alzano Palasport | Ressolar
460 m
Alzano Stadio | Ressolar
750 m
Parcheggio Polisportiva Villese | EnelX
810 m
Scuole Scuole
Liceo Scientifico "E. Amaldi"
160 m
Scuole
160 m
Scuola Privata Papa Paolo VI
200 m
Scuola Materna Privata
230 m
Scuole elementari e Medie inferiori Di Alzano Capoluogo
270 m
Farmacia Farmacia
Farmacia San Martino
100 m
Farmacia Pedrinelli
150 m
Farmacia
300 m
Farmacia Alzano Sopra
590 m
Farmacia Bolzoni
700 m
Ospedali Ospedali
Ospedale di Alzano Lombardo
370 m
Pia Fondazione Piccinelli
2,4 Km
Supermercati Supermercati
Supermercati
320 m
DPiù discount
1,3 Km
MD
1,4 Km
Esselunga di Nembro
1,5 Km
Aldi
1,6 Km
Negozi Negozi
Trionfini
30 m
Minimarket Sapienza pane e verdura
730 m
Negozi
890 m
Proposte Moda
910 m
Minimarket Carefour- Brissoni
1,4 Km
Bar Bar
Bar delle piscine
390 m
Bar
430 m
Barcicletta
670 m
Caffèdicola67
670 m
Giornalaio Bar Minimarket Cavalli
860 m
Ristoranti Ristoranti
Alla Bertonella
110 m
RistoFante
210 m
Locanda della Corte
250 m
Ristoranti
630 m
Al Vecchio Tagliere
890 m
Mostra tutto

Caratteristiche

Rif.:
61169682
Piano:
3 di 4 (Piano medio)
Balconi:
2
Camere da letto:
1
Arredamento:
Completo
Condizionamento:
Autonomo
Mostra tutto
Prezzo Prezzo
€ 120.000
Rata mutuo Rata mutuo
€ 560 / mese
Spese annue Spese annue
€ 750
Proponi il tuo prezzoProponi il tuo prezzo

Classe Energetica

D
D
D
D
D
D
D
D
D
Anno di costruzione:
2025
Riscaldamento:
Autonomo
Tipo impianto:
A radiatori
Tipo alimentazione:
Metano

Ti interessa visionare l'immobile?

Fissa un appuntamento  Fissa un appuntamento

Richiedi informazioni

Clicca su Leggi per aprire l'informativa
* Questi campi sono obbligatori

Calcola il tuo mutuo

Semplice e senza impegno
Anticipo

( % )
Mutuo

( % )

pochi semplici passi

inserisci i tuoi dati
Questionario completato
Grazie per aver richiesto un appuntamento senza impegno con un nostro Consulente del Credito e Assicurativo.

Hai inserito correttamente tutti i dati necessari e a breve riceverai una e-mail con un link da convalidare per inviare i tuoi dati.
Affiliato
Agenzia Imm.re Bg1 Srl
Via Zanchi, 51 24022 Alzano Lombardo (BG)

Il nostro staff


  • Andrea Vecchiarelli
    Affiliato

  • Mara Luzzana
    Coordinatrice

  • Alice Micheletti
    Affiliata
Via Zanchi, 51 24022 Alzano Lombardo (BG)
Zona: Alzano Lombardo-Villa Di Serio
Mostra su mappa
Orari: LUNEDI 9.00 - 12.30 14.30 - 20.00 MARTEDI 9.00 - 12.30 14.30 - 20.00 MERCOLEDI 9.00 - 12.30 14.30 - 20.00 GIOVEDI 9.00 - 12.30 14.30 - 20.00 VENERDI 9.00 - 12.30 14.30 - 20.00 SABATO 9.00 - 12.30 14.30 - 18.00
Affiliato
Agenzia Imm.re Bg1 Srl
Via Zanchi, 51 24022 Alzano Lombardo (BG)

2026 Tecnocasa Franchising S.p.A. - P. IVA 08365160152 - Via Monte Bianco 60/A 20089 Rozzano (MI). Ogni agenzia ha un proprio titolare ed è autonoma. Privacy policy | Policy utilizzo | Cookie policy